Вхід на сайт

Ел. пошта:
Пароль:

Реєстрація на сайті

Призвіще: Область:
Ім'я: Населений пункт:
    По батькові: Номер телефону:
    Ел. пошта: Компанія:
      Пароль: Посада:
      Повторіть пароль: Рік початку роботи:
      Фото:
      З правилами розміщення об'єктів погоджуюсь

      Забули пароль?

      Вкажіть ел. пошту — ми надішлемо Вам новий пароль для входу
      Ел. пошта:

      Проблема на сайті

      Закрити
      Ваш e-mail:
      (необов'язково)
      Розкажіть нам, що сталось

      без комісії Шептицького, 32 — Здається торгівельний майданчик

      (г. Луцк)

      28000 грн.

      Оренда приміщення в районі пр. Відродження

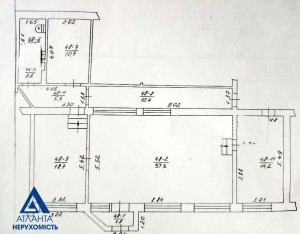
      Розташування: знаходиться на 1 пов. в 5 пов. житловому будинку по вул. Шептицього, 32. Поруч зупинки громадського транспорту, школа №17, садочок №30, супермаркет “Експрес Там-там” та ін. Швидкий доступ до вулиць К.-Карого, вул. Рівненська, п-кт Відродження, що дозволяє швидко виїхати в будь-якому напрямку міста.

      Характеристики: окремий вхід, площа - 119 м.кв., тихе, спокійне місце, санвузол, ремонт, великі фасадні вітрини, високі стелі, можливість розміщення фасадної вивіски.

      Комунікації: електроенергія по лічильнику, централізоване водопостачання та каналізація.

      Ідеально підходить під майстерню, офіс,поштове відділення, відділення фінансово-кредитних установ, страхову компанію, магазин з адресним доступом клієнтів, та ін.

      менеджер об'єкту
      Ольга Синиця
      095 805 1772

      Надіслати скаргу

      Закрити
      Поскаржитися на об'єкт «Шептицького, 32 (г. Луцк)»
      Ваш коментар:(Необов'язково)
      Ваша скарга буде надіслана ріелтору, що розмістив об'єкт, а також адміністрації сайту АФНУ.
      Ваше ім'я:
      (Обов'язково)
      Ваш e-mail для відповіді:
      (Обов'язково)

      Вам также могут подойти

      Конякіна, 11 (г. Луцк) - Здається торгівельний майданчик, 40000 грн. - АФНУ

      Оновлено: 14 липня

      Розміщено: 14 липня

      Здається торгівельний майданчик

      г. Луцк, Конякіна, 11

      40000 грн. без комісії

      Данкін Олександр Олександрович

      керівник відділу комерційної нерухомості (Компанія "Атланта Нерухомість")

      Оренда фасадного приміщення по вул. Конякіна

      Розташування: над дорогою в одному з найгустонаселеніших районів міста. Поруч: АЗС, аптеки, магазини, зупинки громадського транспорту, та ін.

      Характеристики:
      • Площа – 124,9 м.…

      Детальніше

      Конякіна, 39а (г. Луцк) - Здається торгівельний майданчик, 25000 грн. - АФНУ

      Оновлено: 29 серпня

      Розміщено: 31 липня

      Здається торгівельний майданчик

      площа 30

      г. Луцк, Конякіна, 39а

      25000 грн. без комісії

      Данкін Олександр Олександрович

      керівник відділу комерційної нерухомості (Компанія "Атланта Нерухомість")

      Оренда приміщення на Автостанції та Варшавському ринку!

      відео: youtube.com/ watch?v=Z39VgzQl2es

      РОЗТАШУВАННЯ: м. Луцьк, вул. Конякіна, 39а. Розвинена інфраструктура, поруч: аптека, заклади харчування, ринок, магазин побутової хімії, продуктовий магазин. Активний автомобільний,…

      Детальніше

      Конякіна, 11 (г. Луцк) - Здається торгівельний майданчик, 40000 грн. - АФНУ

      Оновлено: 14 липня

      Розміщено: 14 липня

      Здається торгівельний майданчик

      г. Луцк, Конякіна, 11

      40000 грн. без комісії

      Данкін Олександр Олександрович

      керівник відділу комерційної нерухомості (Компанія "Атланта Нерухомість")

      Оренда фасадного приміщення по вул. Конякіна

      Розташування: над дорогою в одному з найгустонаселеніших районів міста. Поруч: АЗС, аптеки, магазини, зупинки громадського транспорту, та ін.

      Характеристики:
      • Площа – 124,9 м.…

      Детальніше

      Коментарі