Вхід на сайт

Ел. пошта:
Пароль:

Реєстрація на сайті

Призвіще: Область:
Ім'я: Населений пункт:
    По батькові: Номер телефону:
    Ел. пошта: Компанія:
      Пароль: Посада:
      Повторіть пароль: Рік початку роботи:
      Фото:
      З правилами розміщення об'єктів погоджуюсь

      Забули пароль?

      Вкажіть ел. пошту — ми надішлемо Вам новий пароль для входу
      Ел. пошта:

      Проблема на сайті

      Закрити
      Ваш e-mail:
      (необов'язково)
      Розкажіть нам, що сталось

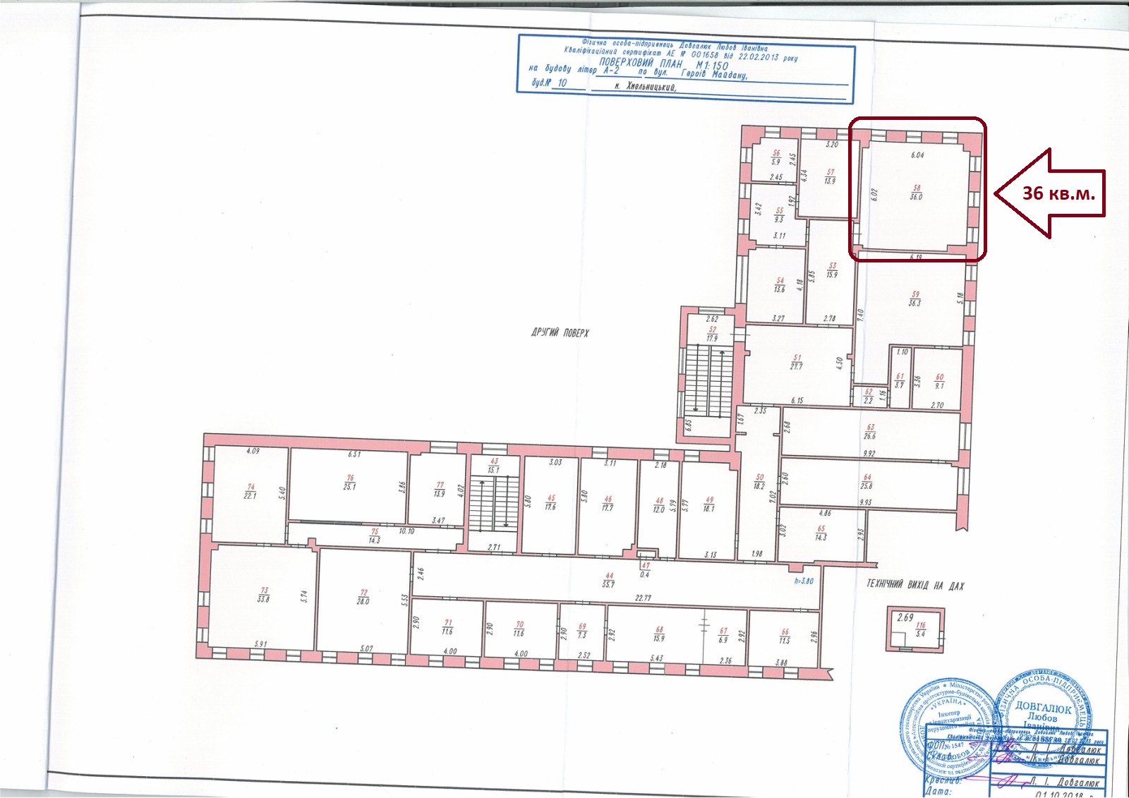
      Героїв Майдану, 10 — Здається офіс

      (г. Хмельницкий)

      5000 грн.

      Загальна площа: 36 кв.м

      Кімнат: 1

      Поверх: 2

      К-ть поверхів: 2

      Здам в оренду приміщення. Центр, вул.Героїв Майдану (Театральна) 10. (Поруч з податковою)
      2-й поверх. Цілодобовий доступ.
      Площа: 36 кв.м.
      Вартість: 5000грн/місяць + світло по лічильнику
      Оплата: 1й і останній місяць + разово комісійні агентства.
      Санвузол на поверсі. Світло 24/7.
      Без опалення. Без меблів. Вільне.
      Показ по попередній домовленості.

      Надіслати скаргу

      Закрити
      Поскаржитися на об'єкт «Героїв Майдану, 10 (г. Хмельницкий)»
      Ваш коментар:(Необов'язково)
      Ваша скарга буде надіслана ріелтору, що розмістив об'єкт, а також адміністрації сайту АФНУ.
      Ваше ім'я:
      (Обов'язково)
      Ваш e-mail для відповіді:
      (Обов'язково)

      Вам также могут подойти

      ул. Театральная, 10 (г. Хмельницкий, центр) - Здається офіс, 5000 грн. - АФНУ

      Оновлено: 3 березня

      Розміщено: 29 жовтня 2025

      Здається офіс

      3 кімн., площа 30, поверх 2/2

      г. Хмельницкий, ул. Театральная, 10

      5000 грн.

      Осташевський Олексій Іванович

      Спеціаліст з нерухомості (ЦН "Золотий ключ")

      Здам в оренду приміщення. Центр, вул.Героїв Майдану (Театральна) 10. (Поруч з податковою)
      2-й поверх. Цілодобовий доступ.
      Площа: 30,1 кв.м.
      Вартість: 5000грн/місяць + світло по лічильнику
      Оплата: 1й і останній місяць…

      Детальніше

      ул. Театральная, 10 (г. Хмельницкий, центр) - Здається офіс, 3500 грн. - АФНУ

      Оновлено: 3 березня

      Розміщено: 19 січня

      Здається офіс

      1 кімн., площа 17, поверх 1/2

      г. Хмельницкий, ул. Театральная, 10

      3500 грн.

      Осташевський Олексій Іванович

      Спеціаліст з нерухомості (ЦН "Золотий ключ")

      Здам в оренду приміщення. Центр, вул.Героїв Майдану (Театральна) 10. (Поруч з податковою)
      1-й поверх. Цілодобовий доступ.
      Площа: 17 кв.м.
      Вартість: 3500грн/місяць + світло по лічильнику
      Оплата: 1й і останній місяць…

      Детальніше

      ул. Театральная, 10 (г. Хмельницкий, центр) - Здається офіс, 5000 грн. - АФНУ

      Оновлено: 3 березня

      Розміщено: 29 жовтня 2025

      Здається офіс

      3 кімн., площа 30, поверх 2/2

      г. Хмельницкий, ул. Театральная, 10

      5000 грн.

      Осташевський Олексій Іванович

      Спеціаліст з нерухомості (ЦН "Золотий ключ")

      Здам в оренду приміщення. Центр, вул.Героїв Майдану (Театральна) 10. (Поруч з податковою)
      2-й поверх. Цілодобовий доступ.
      Площа: 30,1 кв.м.
      Вартість: 5000грн/місяць + світло по лічильнику
      Оплата: 1й і останній місяць…

      Детальніше

      Коментарі