Вхід на сайт

Ел. пошта:
Пароль:

Реєстрація на сайті

Призвіще: Область:
Ім'я: Населений пункт:
    По батькові: Номер телефону:
    Ел. пошта: Компанія:
      Пароль: Посада:
      Повторіть пароль: Рік початку роботи:
      Фото:
      З правилами розміщення об'єктів погоджуюсь

      Забули пароль?

      Вкажіть ел. пошту — ми надішлемо Вам новий пароль для входу
      Ел. пошта:

      Проблема на сайті

      Закрити
      Ваш e-mail:
      (необов'язково)
      Розкажіть нам, що сталось

      пл. 95 - Квартал — Здається торгівельний майданчик

      (г. Кривой Рог, Саксаганский район)

      250 грн. за кв.м.

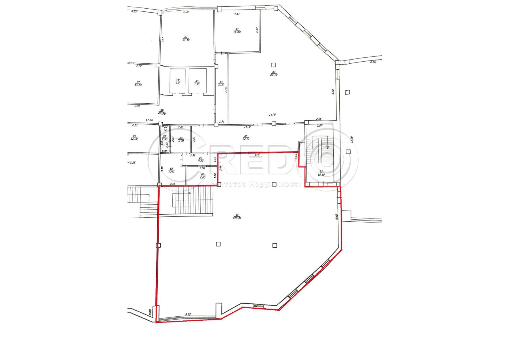
      Загальна площа: 530 кв.м

      Поверх: 1

      К-ть поверхів: 4

      Оренда приміщення в ТК на 95 кварталі
      - Саксаганський район
      - пл. 95 квартал

      Технічні характиристики:
      - окрема будівля
      - 1-й та 2-й поверх 4-поверхового торгівельного комплексу
      - окремий вхід

      Планування об’єкту:
      - площа - 530.5кв.м
      - вільне планування
      - в приміщення заведені вода та стоки

      Комунікації:
      - центральне електропостачання
      - центральне водопостачання, каналізація
      - опалення автономне газове
      - кондиціювання
      - охоронна, пожежна сигналізації
      - відеонагляд

      Логістична розв’язка:
      - розташоване по "червоній лінії"
      - зупинка громадського транспорту "95 квартал"
      - парковка
      - зарядна станція для електромобілів

      Додаткові платежі:
      - світло, вода - лічильники
      - інтернет
      - опалення згідно орендуємої площі
      - пожежна та охорона сигналізації
      - комунальні послуги

      Оренда - 250 грн/кв.м.

      З повагою, команда Credo!

      Надіслати скаргу

      Закрити
      Поскаржитися на об'єкт «пл. 95 - Квартал (г. Кривой Рог, Саксаганский район)»
      Ваш коментар:(Необов'язково)
      Ваша скарга буде надіслана ріелтору, що розмістив об'єкт, а також адміністрації сайту АФНУ.
      Ваше ім'я:
      (Обов'язково)
      Ваш e-mail для відповіді:
      (Обов'язково)

      Вам также могут подойти

      пр. Університетський (г. Кривой Рог, Саксаганский район) - Здається торгівельний майданчик, 350 грн. за кв.м. - АФНУ

      Оновлено: 27 лютого

      Розміщено: 16 травня 2025

      Здається торгівельний майданчик

      площа 308, поверх 1/4

      г. Кривой Рог, пр. Університетський

      350 грн. за кв.м.

      Літвинова Ірина Вікторівна

      Оренда магазину Саксаганський район
      пр. Університетський (пр. Гагаріна), 96 квартал
      "червона лінія"

      Технічні характеристики:
      - перший поверх 4-х поверхового житлового будинку
      - гарний фасад
      - великі вітражні вікна
      - ролети…

      Детальніше

      Володимира Великого (г. Кривой Рог, Саксаганский район) - Здається торгівельний майданчик, 250 грн. за кв.м. - АФНУ

      Оновлено: 9 березня

      Розміщено: 16 травня 2025

      Здається торгівельний майданчик

      площа 562, поверх 1/9

      г. Кривой Рог, Володимира Великого

      250 грн. за кв.м.

      Літвинова Ірина Вікторівна

      Оренда торгового приміщення вул.Володимира Великого
      Саксаганський район

      Технічні характеристики:
      - перший поверх 9-ти поверхового житлового будинку
      - "червона лінія"
      - в приміщенні зроблено капітальний ремонт

      Планування об’єкту:
      - загальна площа…

      Детальніше

      ул. Мелешкина (г. Кривой Рог, Саксаганский район) - Здається торгівельний майданчик, 300 грн. за кв.м. - АФНУ

      Оновлено: 6 лютого

      Розміщено: 6 лютого

      Здається торгівельний майданчик

      площа 208, поверх 1/5

      г. Кривой Рог, ул. Мелешкина

      300 грн. за кв.м.

      Літвинова Ірина Вікторівна

      Оренда магазину
      - Саксаганський район
      - вул.Володимира Великого,19

      Технічні характеристики:
      - перший поверх 5-ти поверхового житлового будинку
      - "червона лінія"
      - приміщення в гарному стані
      - парковка

      Планування об’єкту:
      -…

      Детальніше

      Коментарі