Вхід на сайт

Ел. пошта:
Пароль:

Реєстрація на сайті

Призвіще: Область:
Ім'я: Населений пункт:
    По батькові: Номер телефону:
    Ел. пошта: Компанія:
      Пароль: Посада:
      Повторіть пароль: Рік початку роботи:
      Фото:
      З правилами розміщення об'єктів погоджуюсь

      Забули пароль?

      Вкажіть ел. пошту — ми надішлемо Вам новий пароль для входу
      Ел. пошта:

      Проблема на сайті

      Закрити
      Ваш e-mail:
      (необов'язково)
      Розкажіть нам, що сталось

      ул. Мусоргского — Продається квартира

      (г. Кривой Рог, Жовтневый район)

      17000 $

      Загальна площа: 91 кв.м

      Жила площа: 61 кв.м

      Площа кухні: 10 кв.м

      Кімнат: 5

      Поверх: 1

      К-ть поверхів: 4

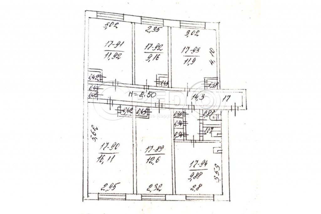
      Продаж 5-кімн. квартири, вул. Мусоргського, 44 Квартал, у Покровського районі
      Квартира під свій ремонт, легко переплановується.

      Про об'єкт:
      - 5-кімнатна квартира
      - 1 поверх 4 поверхового будинку
      - Загальна площа 91,8кв.м.
      - Житлова площа 61,7
      - Кухня 10кв.м.

      Планування об'єкту:
      - квартира двостороння.
      - всі кімнати окремі
      - санвузол окремо

      Комунікації:
      - Електроенергія
      - Центральне водопостачання та каналізація
      - Центральне опалення

      Плюси локації:
      - Центр 44 Кварталу
      - Поряд ринок «Північний», сквер з музичним фонтаном, медичний центр.
      - Зупинки громадського транспорту, парк.

      Вартість: 17 000S

      За будь-якими питаннями за цією або схожими пропозиціями звертайтесь за номером телефону, де вам відповість наш ріелтор.
      З повагою, команда Credo!

      Надіслати скаргу

      Закрити
      Поскаржитися на об'єкт «ул. Мусоргского (г. Кривой Рог, Жовтневый район)»
      Ваш коментар:(Необов'язково)
      Ваша скарга буде надіслана ріелтору, що розмістив об'єкт, а також адміністрації сайту АФНУ.
      Ваше ім'я:
      (Обов'язково)
      Ваш e-mail для відповіді:
      (Обов'язково)

      Вам также могут подойти

      Свірська (г. Кривой Рог, Жовтневый район) - Продається квартира, 16000 $ - АФНУ

      Оновлено: 11 грудня 2025

      Розміщено: 22 травня 2025

      Продається квартира

      3 кімн., площа 65/39/8, поверх 3/5

      г. Кривой Рог, Свірська

      16000 $

      Літвинова Ірина Вікторівна

      Продаж 3-х кім. квартири вул.227-го автомобільного батальйону (Свірська), «Крес».

      Про об’єкт:
      Квартира розташована на 3/5-ти поверхового будинку.
      Загальна площа 65.1кв.м., житлова 39кв.м.,кухня 8.3кв.м., висота Н 2.7м.

      Планування об’єкту:
      Квартира не…

      Детальніше

      ул. Отто Брозовского (г. Кривой Рог, Долгинцевский район) - Продається квартира, 15800 $ - АФНУ

      Оновлено: сьогодні

      Розміщено: 6 травня 2025

      Продається квартира

      3 кімн., площа 48/31/5, поверх 5/5

      г. Кривой Рог, ул. Отто Брозовского

      15800 $

      Літвинова Ірина Вікторівна

      Продаж 3-х кім. квартири вул. Ярослава Мудрого (Новинка)

      Про об’єкт:
      - Квартира розташована на 5/5-ти поверхового будинку.
      - Загальна площа 48,6кв.м.
      - Житлова 31,5кв.м.
      - Кухня 5,7кв.м.
      - Висота Н…

      Детальніше

      Свірська (г. Кривой Рог, Жовтневый район) - Продається квартира, 16000 $ - АФНУ

      Оновлено: 11 грудня 2025

      Розміщено: 22 травня 2025

      Продається квартира

      3 кімн., площа 65/39/8, поверх 3/5

      г. Кривой Рог, Свірська

      16000 $

      Літвинова Ірина Вікторівна

      Продаж 3-х кім. квартири вул.227-го автомобільного батальйону (Свірська), «Крес».

      Про об’єкт:
      Квартира розташована на 3/5-ти поверхового будинку.
      Загальна площа 65.1кв.м., житлова 39кв.м.,кухня 8.3кв.м., висота Н 2.7м.

      Планування об’єкту:
      Квартира не…

      Детальніше

      Коментарі