без комісії
ул. Київська, 64 — Продається квартира
(г. Обухов, Обуховский район)
50000 $
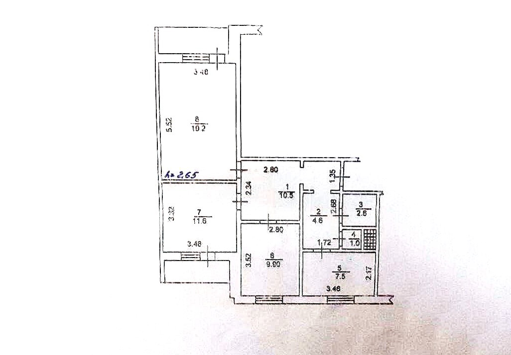
Загальна площа: 71 кв.м
Жила площа: 40 кв.м
Площа кухні: 8 кв.м
Кімнат: 3
Поверх: 5
К-ть поверхів: 9
Пропонуємо 3-кімнатну квартиру за адресою: вул. Київська, 64.
Характеристики:
5-й поверх 9-поверхового будинку
Площа: 71 м² (житлова – 40 м², кухня – 8 м²)
3 роздільні кімнати – комфорт для всієї родини
2 засклені лоджії – місце для відпочинку чи зберігання
Великий передпокій, Роздільний санвузол.
Квартира тепла та світла, у житловому стані, з меблями та технікою. При бажанні нові власники зможуть легко оновити інтер’єр під свій смак.
Переваги локації: Все необхідне поруч – новий «ЕПІЦЕНТР», школа, дитсадок, гіпермаркет, аптека, банк, інш. Зручна транспортна розв’язка – зупинка всього за 3 хвилини від дому.