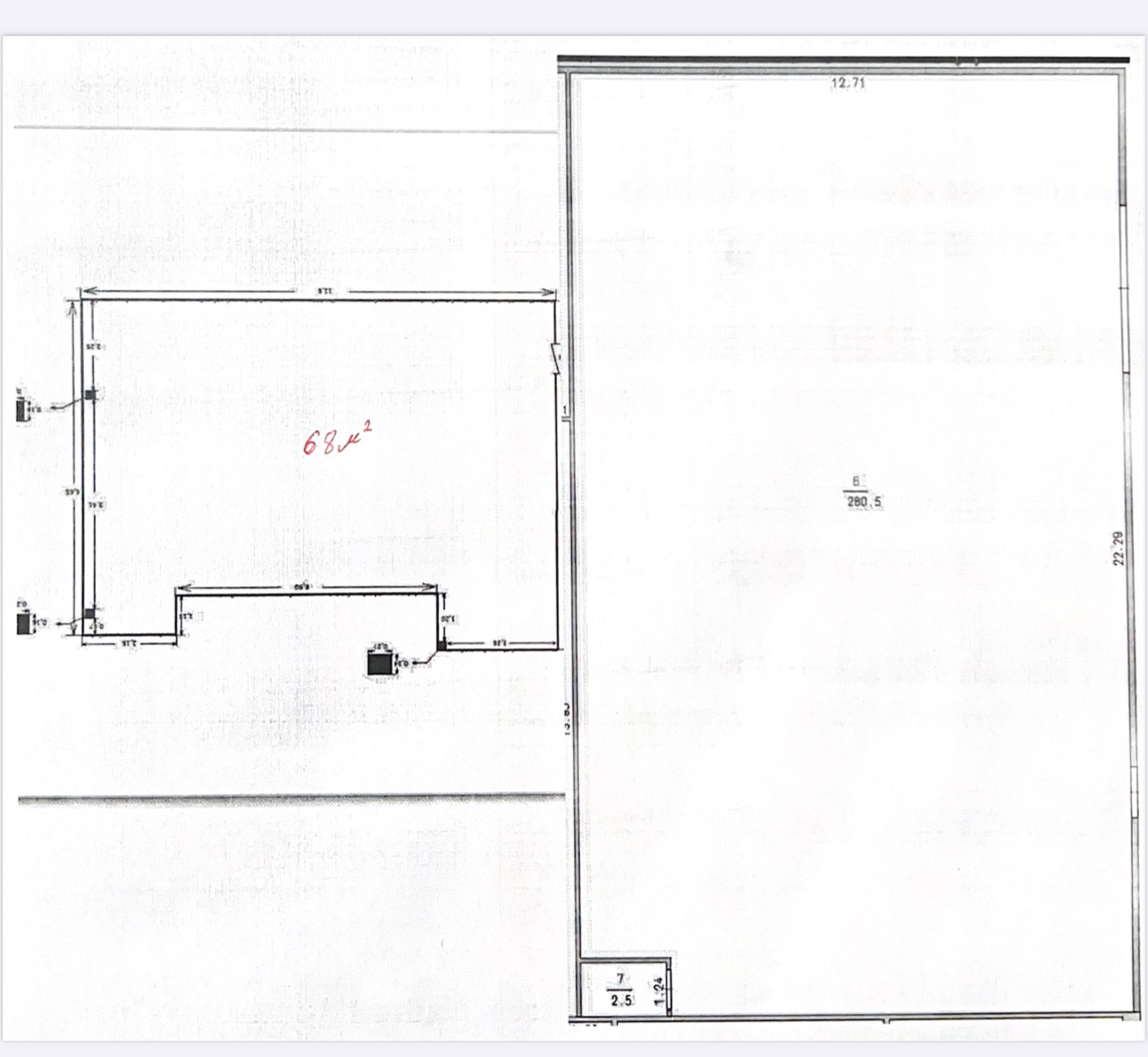
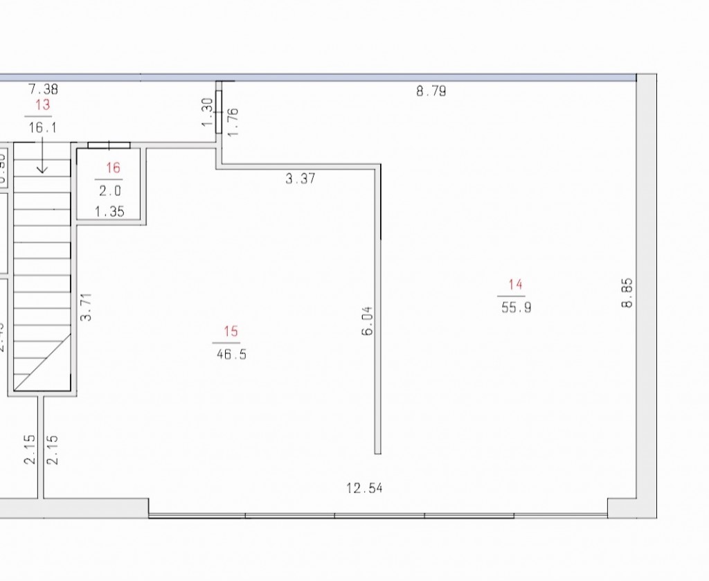
Оренда комерційного приміщення склад 351 м.кв та офіси 110 м.кв на 2 поверсі р-н Гречани вул. Шухевича (Курчатова) 19. Окремо стояча 2-х поверхова будівля (новобудова), Фасадна будівля. Склад: має два об’єднанні приміщення 280 м.кв і 68 м.кв, є два заїзди для великогабаритного транспорту, об лаштований стелажами, промислова стяжка підлоги, 40 кВт електрики, висота 4,5 метрів, відео нагляд, сигналізація, санвузол. Офіс: має два кабінети 55,9 м.кв та 48,5 м.кв, панорамні фасадні вікна, кондиціонер, опалення індивідуальне (електричний котел). Доступ 24/7. Ціна 250 грн/м.кв+ комунальні платежі (світло і вода по лічильникам) Оплата: 1й і останній місяць + комісійні агентства 75%