без комісії
Павла Вірського, 49 — Продається квартира
(г. Киев, Шевченковский район)
51000 $
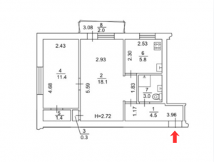
Загальна площа: 46.5 кв.м
Жила площа: 29.5 кв.м
Площа кухні: 5.8 кв.м
Кімнат: 2
Поверх: 2
К-ть поверхів: 5
Без % продам 2-кімнатну квартиру по бул. Павла Вірського ( Саратівська ) 49 на 2-ому поверсі 5-ти поверхового будинку.
Загальна площа - 46.5 кв.м. Житлова площа - 29.5 кв.м. Кухня - 5.8 кв.м. Висота стелі - 2.72 м.
Стан під ремонт , кімнати суміжні, санвузол суміщений . В квартирі склопакети , балкон засклений склопакетами.
Розвинена інфраструктура : в пішій доступності паркова зона, школа, дитсадок, магазини, кав'ярні. Ст. м. Нивки - 15 хвилин. 51000 $ Без комісії для покупця !!!