Вхід на сайт

Ел. пошта:
Пароль:

Реєстрація на сайті

Призвіще: Область:
Ім'я: Населений пункт:
    По батькові: Номер телефону:
    Ел. пошта: Компанія:
      Пароль: Посада:
      Повторіть пароль: Рік початку роботи:
      Фото:
      З правилами розміщення об'єктів погоджуюсь

      Забули пароль?

      Вкажіть ел. пошту — ми надішлемо Вам новий пароль для входу
      Ел. пошта:

      Проблема на сайті

      Закрити
      Ваш e-mail:
      (необов'язково)
      Розкажіть нам, що сталось

      пер. 5-й Заречный — Продається торгівельний майданчик

      (г. Кривой Рог, Жовтневый район)

      27000 $

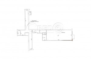
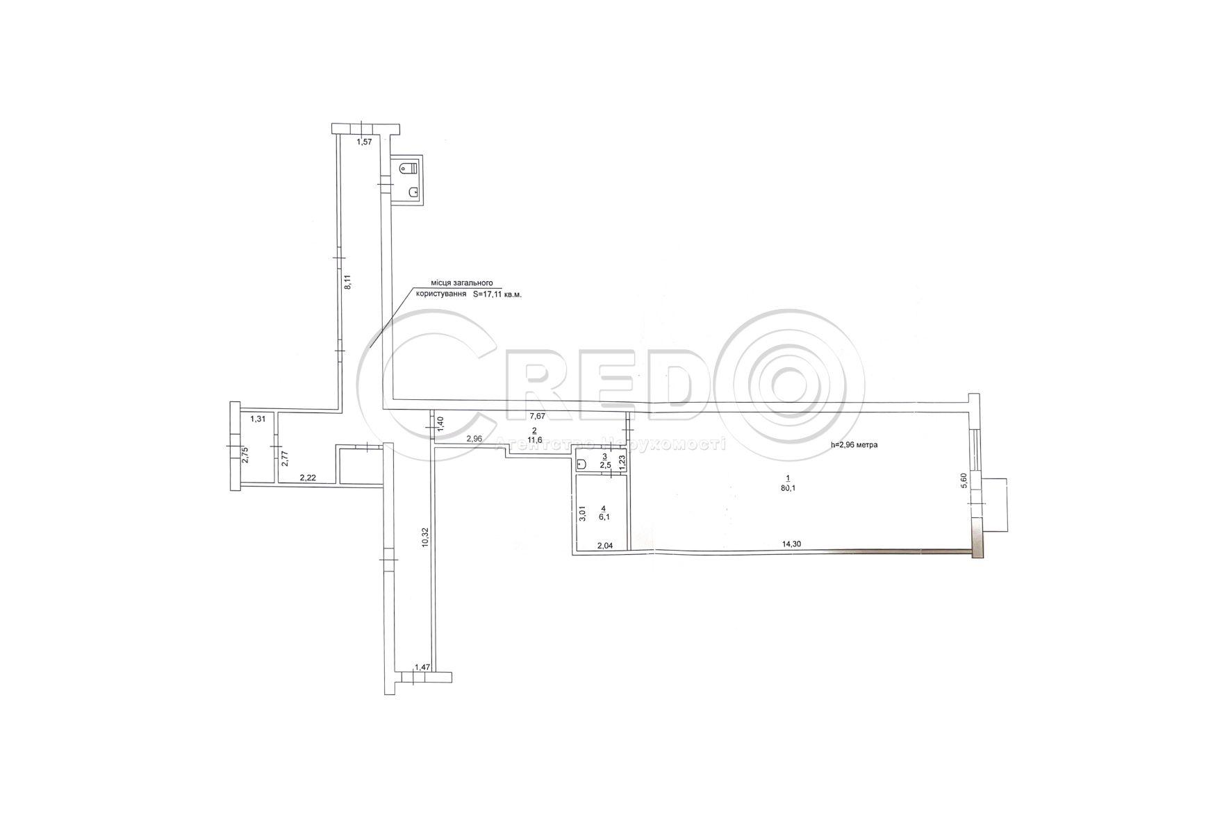
      Загальна площа: 117 кв.м

      Поверх: 1

      К-ть поверхів: 1

      Продаж окремо розташованої будівлі м-н 5-Зарічний.
      Нежитлове приміщення в торговому комплексі вільного призначення з окремим входом.

      Технічні характеристики:
      - Приміщення знаходиться в доброму стані
      - Стіни під фарбування
      - На підлозі кахель
      - Встановлені решітки
      - Кондиціонер

      Планування об’єкту:
      - Загальна площа – 117.41кв.м.,
      - Велика простора зала
      - кабінет, комора, санвузол
      - Висота стелі 2.96м

      Комунікації:
      - Електроенергія 380V, 20кВт
      - Центральне водопостачання та каналізація

      Локація:
      - Великий житловий масив
      - Парковка біля приміщення.
      - Великий пішохідний трафік

      Продаж – 27 000$
      За будь-якими питаннями за цією або схожими пропозиціями звертайтесь за номером телефону, де вам відповість наш ріелтор Надія 098 985 09 08.

      З повагою, команда CREDO!

      Надіслати скаргу

      Закрити
      Поскаржитися на об'єкт «пер. 5-й Заречный (г. Кривой Рог, Жовтневый район)»
      Ваш коментар:(Необов'язково)
      Ваша скарга буде надіслана ріелтору, що розмістив об'єкт, а також адміністрації сайту АФНУ.
      Ваше ім'я:
      (Обов'язково)
      Ваш e-mail для відповіді:
      (Обов'язково)

      Вам также могут подойти

      ул. Мусоргского (г. Кривой Рог, Жовтневый район) - Продається торгівельний майданчик, 25000 $ - АФНУ

      Оновлено: 23 лютого

      Розміщено: 22 серпня 2025

      Продається торгівельний майданчик

      площа 100, поверх 1/4

      г. Кривой Рог, ул. Мусоргского

      25000 $

      Літвинова Ірина Вікторівна

      Продаж торгівельного приміщення, Покровський район, вул. Мусоргського
      Діючий магазин одягу.

      Технічні характеристики:
      - 1 поверх 4 поверхового житлового будинку
      - Загальна площа 100кв.м.
      - Дві торгові зали 30,5кв.м., 30,9кв.м.
      -…

      Детальніше

      ул. Лебедева-Кумача (г. Кривой Рог, Центрально-Городской район) - Продається торгівельний майданчик, 28000 $ - АФНУ

      Оновлено: 12 лютого

      Розміщено: 25 лютого 2019

      Продається торгівельний майданчик

      площа 53, поверх 1/1

      г. Кривой Рог, ул. Лебедева-Кумача

      28000 $

      Літвинова Ірина Вікторівна

      Пропонуємо продаж нежитлової, окремо розташованої будівлі, вільного призначення в Центрально-міському р-ні, вул. Лебедєва-Кумача (Цетр. Міський ринок)

      Про об'єкт:
      - загальна площа - 53,4 кв.м
      - земельна ділянка - 15 соток…

      Детальніше

      ул. Лисового (г. Кривой Рог, Долгинцевский район) - Продається торгівельний майданчик, 24900 $ - АФНУ

      Оновлено: 6 лютого

      Розміщено: 10 березня 2021

      Продається торгівельний майданчик

      площа 46, поверх 1/9

      г. Кривой Рог, ул. Лисового

      24900 $

      Літвинова Ірина Вікторівна

      Пропонуємо продаж магазину вільного призначення, в густонаселеному спальному районі Східний-2, по вул. Лісового.

      Про об'єкт:
      - заг. пл. - 46,4 кв.м
      - приміщення фасадне, в гарному стані,
      - має два…

      Детальніше

      Коментарі