Вхід на сайт

Ел. пошта:
Пароль:

Реєстрація на сайті

Призвіще: Область:
Ім'я: Населений пункт:
    По батькові: Номер телефону:
    Ел. пошта: Компанія:
      Пароль: Посада:
      Повторіть пароль: Рік початку роботи:
      Фото:
      З правилами розміщення об'єктів погоджуюсь

      Забули пароль?

      Вкажіть ел. пошту — ми надішлемо Вам новий пароль для входу
      Ел. пошта:

      Проблема на сайті

      Закрити
      Ваш e-mail:
      (необов'язково)
      Розкажіть нам, що сталось

      ул. Косиора — Продається торгівельний майданчик

      (г. Кривой Рог, Дзержинский район)

      17700 €

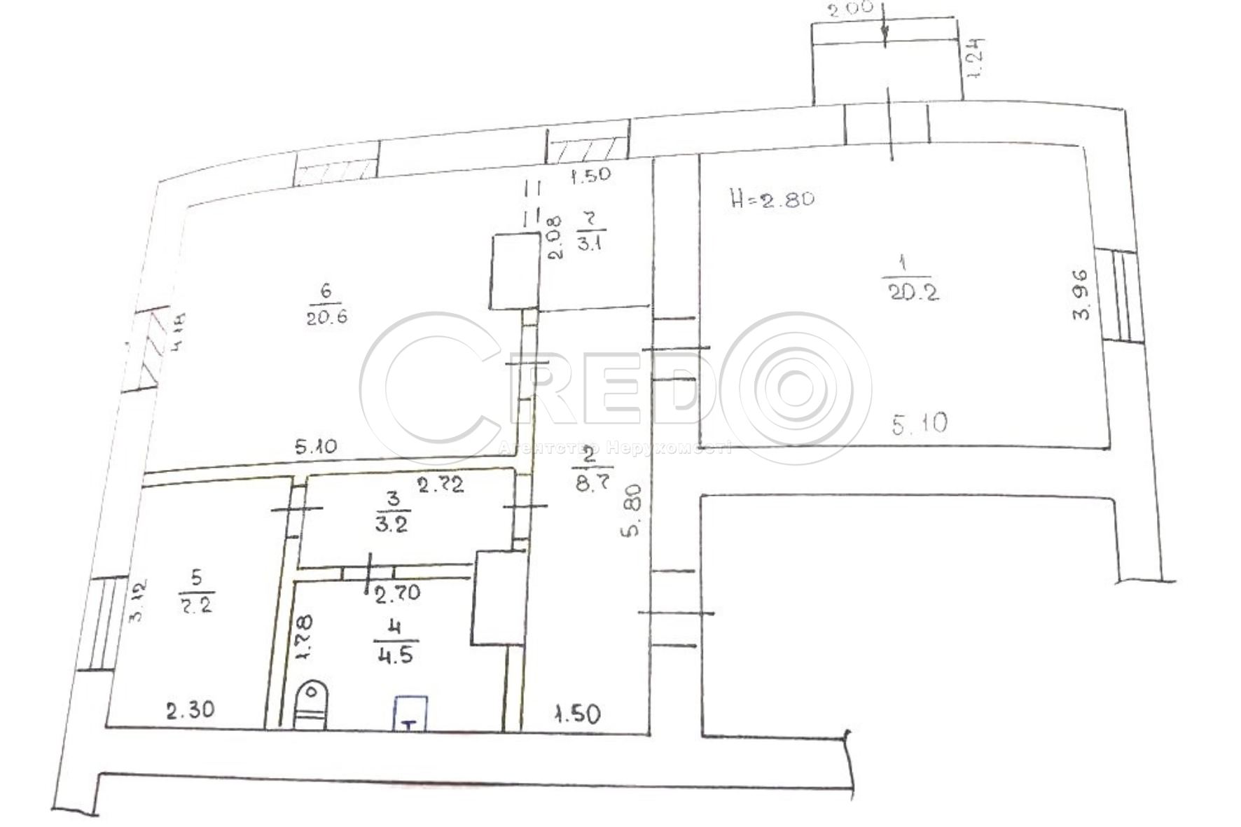
      Загальна площа: 67 кв.м

      Поверх: 1

      К-ть поверхів: 4

      Продаж приміщення, вул. Соборності, Соцмісто

      Про обʼєкт:
      - вбудоване в 1-ий поверх 4-х поверхового житлового будинку
      - загальна площа - 67,5 кв. м

      Особливості:
      - два зали, кабінет
      - сан.вузол, підсобне приміщення

      Комунікації:
      - центральні
      - тепловий лічильник на будинок
      - електроенергія 380V

      Локація:
      Розташоване навпроти ринку, займає протилежний від ринку торець будинку (вихід на вулицю і сквер по С. Тільги).
      Місце з дуже високою прохідністю.Хороша пропозиція під свій салон, офіс, кав'ярню та ін.

      Приміщення актуальне як на продаж, так і на оренду

      На оренду: 7000грн + комун.платежі

      За будь-якими питаннями за цією або схожими пропозиціями звертайтесь за номером телефону, де вам відповість наш ріелтор Віра 097 541 73 31.

      З повагою, команда Credo!

      Надіслати скаргу

      Закрити
      Поскаржитися на об'єкт «ул. Косиора (г. Кривой Рог, Дзержинский район)»
      Ваш коментар:(Необов'язково)
      Ваша скарга буде надіслана ріелтору, що розмістив об'єкт, а також адміністрації сайту АФНУ.
      Ваше ім'я:
      (Обов'язково)
      Ваш e-mail для відповіді:
      (Обов'язково)

      Вам также могут подойти

      ул. Косиора (г. Кривой Рог, Дзержинский район) - Здається торгівельний майданчик, 15500 грн. - АФНУ

      Оновлено: 8 жовтня

      Розміщено: 29 червня 2022

      Здається торгівельний майданчик

      площа 75, поверх 1/5

      г. Кривой Рог, ул. Косиора

      15500 грн.

      Літвинова Ірина Вікторівна

      Оренда офісного приміщення по "червоній лінії", вулиця Соборності

      Про обʼєкт:
      - Загальна площа 75 кв.м
      - Поверховість 1/5
      - Зроблений капітальний ремонт
      - Два робочих приміщення

      Комунікації:
      - Напруга 2.5кВт…

      Детальніше

      Віталія Матусевича (г. Кривой Рог, Дзержинский район) - Здається торгівельний майданчик, 20000 грн. - АФНУ

      Оновлено: 11 вересня

      Розміщено: 9 травня

      Здається торгівельний майданчик

      площа 92, поверх 1/5

      г. Кривой Рог, Віталія Матусевича

      20000 грн.

      Літвинова Ірина Вікторівна

      Оренда приміщення – салону краси, вул. В. Матусевича

      Технічні характеристики:
      Приміщення розташоване на 1/5-ти поверхового будинку, над проїзною частиною.
      - Загальна площа 92.9кв.м.,
      - 4-кабінета,
      - два санвузла,
      - вмонтована…

      Детальніше

      ул. Софьи Перовской (г. Кривой Рог, Саксаганский район) - Продається торгівельний майданчик, 14800 $ - АФНУ

      Оновлено: 7 жовтня

      Розміщено: 26 січня 2018

      Продається торгівельний майданчик

      площа 25, поверх 1/5

      г. Кривой Рог, ул. Софьи Перовской

      14800 $

      Літвинова Ірина Вікторівна

      Продається приміщення в районі зупинки «Площі В. Великого», вулиця Софії Перовської.

      Про об'єкт:
      - Загальна площа - 25,1 кв.м.

      Особливості:
      - Зроблений новий євроремонт 2022р.
      - Поміняна каналізація, проводка, бойлер…

      Детальніше

      Коментарі