Вхід на сайт

Ел. пошта:
Пароль:

Реєстрація на сайті

Призвіще: Область:
Ім'я: Населений пункт:
    По батькові: Номер телефону:
    Ел. пошта: Компанія:
      Пароль: Посада:
      Повторіть пароль: Рік початку роботи:
      Фото:
      З правилами розміщення об'єктів погоджуюсь

      Забули пароль?

      Вкажіть ел. пошту — ми надішлемо Вам новий пароль для входу
      Ел. пошта:

      Проблема на сайті

      Закрити
      Ваш e-mail:
      (необов'язково)
      Розкажіть нам, що сталось

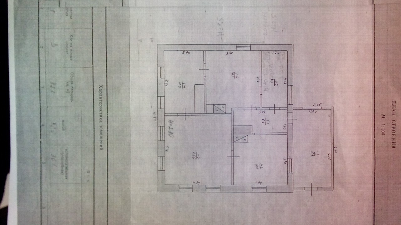
      пер. Калинина — Продається будинок

      (с. Терновая, Чугуевский район)

      14900 $

      Загальна площа: 85 кв.м

      Площа ділянки: 30 сот

      Кімнат: 3

      К-ть поверхів: 1

      Продам добротный дом в поселке Терновая в 23 км от Харькова. Построен из красного кирпича и утеплен пеноизолом. Площадь дома 98 м,3 комнаты - 19,2, 25,5, 12,3 и кухня 16 м. Во всем доме поменяны окна Veka и подоконники. Коммуникации газ, свет. Скважина во дворе. (новая)
      удобства на улице. Есть летняя кухня-обшита гипсокартоном. Есть погреб и есть возможность сделать гараж. Земли 30 соток с теплицами. (Готовый бизнес!!!! Прекрасная почва для выращивания овощей!)
      Хороший заезд для машины, асфальтированная дорога. Хорошие соседи. Рядом с домом школа, магазины, остановка. Маршрутки на Харьков каждые 30-40 мин.
      Есть вопросы? Звоните в любое время!

      Надіслати скаргу

      Закрити
      Поскаржитися на об'єкт «пер. Калинина (с. Терновая, Чугуевский район)»
      Ваш коментар:(Необов'язково)
      Ваша скарга буде надіслана ріелтору, що розмістив об'єкт, а також адміністрації сайту АФНУ.
      Ваше ім'я:
      (Обов'язково)
      Ваш e-mail для відповіді:
      (Обов'язково)

      Коментарі