Вхід на сайт

Ел. пошта:
Пароль:

Реєстрація на сайті

Призвіще: Область:
Ім'я: Населений пункт:
    По батькові: Номер телефону:
    Ел. пошта: Компанія:
      Пароль: Посада:
      Повторіть пароль: Рік початку роботи:
      Фото:
      З правилами розміщення об'єктів погоджуюсь

      Забули пароль?

      Вкажіть ел. пошту — ми надішлемо Вам новий пароль для входу
      Ел. пошта:

      Проблема на сайті

      Закрити
      Ваш e-mail:
      (необов'язково)
      Розкажіть нам, що сталось

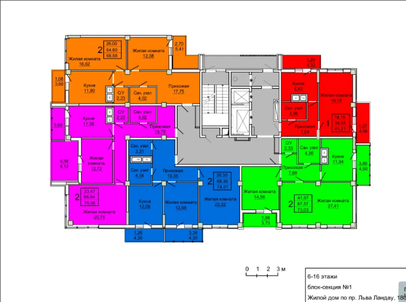
      просп. Льва Ландау, 180 — Продається квартира

      (г. Харьков, Московский район)

      33000 $

      Загальна площа: 78 кв.м

      Площа кухні: 13 кв.м

      Кімнат: 2

      Поверх: 11

      К-ть поверхів: 16

      Жилой комплекс «Слобожанский квартал» — это современные квартиры в развитом районе города. Идеальная транспортная развязка. Рядом с домом остановки городского транспорта (троллейбусы, маршрутки, метро).
      Вокруг жилого комплекса предусмотрено благоустройство территории: детские площадки, наружное освещение, проезды и пешеходные дорожки с твердым покрытием, а также гостевая стоянка для легковых автомобилей. Предусмотрено озеленение территории.

      Строительство выполняется из качественных и надежных строительных материалов. Наружные стены здания состоят из ячеистых блоков, которые отлично изолируют шум и сохраняют тепло.

      В жилом комплексе предполагается установить 4 лифта (грузовой и пассажирский в каждой секции).

      Надіслати скаргу

      Закрити
      Поскаржитися на об'єкт «просп. Льва Ландау, 180 (г. Харьков, Московский район)»
      Ваш коментар:(Необов'язково)
      Ваша скарга буде надіслана ріелтору, що розмістив об'єкт, а також адміністрації сайту АФНУ.
      Ваше ім'я:
      (Обов'язково)
      Ваш e-mail для відповіді:
      (Обов'язково)

      Коментарі