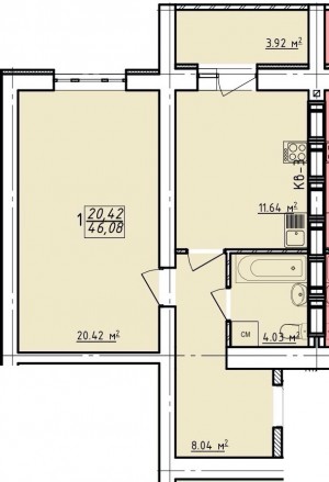
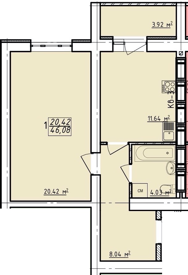
Продаєтся 1-кімнатна квартира в новобудові ЖК "Левада-2" по вул. Заливна, 6. Поруч з будинком, та в радіусі 2 км. від нього розташовані: метро "Проспект Гагарина", супермаркет "АТБ", супермаркет "Класс" який зараз будується, малі магазини та сфери послуг, зупинка транспорту (800 м); 5 шкіл, до найближчої 1.5 км; 5 дитячих садків. Також є місце де можна і відпочити, це "Гімназійна набережна" (1 км.). На территорії самої новобудови, забудовник обіцяє: дитячі ігрові та спортивні майданчики з тротуарами та озеленням. Також плануются гостьові парковки і багатоповерховий паркінг. - Квартира розташована в будинку 3 - зданий, можна приступати до ремонту. Площа квартири: Загальна площа - 46 м²; Житлова площа - 20 м²; Кухня - 12 м². - ПО КВАРТИРІ: • потрібен капітальний ремонт. КОМПЛЕКТАЦІЯ КВАРТИРИ: • встановлені перегородки як зазначено на плані; • металопластикові вікна (viknaland); • горизонтальна розводка опалення та радіатори опалення (є можливість поставити лічильник на тепло, регулятори на батареї і контролювати подачу тепла в квартиру, індивідуально); • вхідні залізні двері; • лічильник на електрику; • підведені комунікації (холодна, гаряча вода); • каналізація; • заведено електрику; • зроблено зовнішнє утеплення стін (утеплювач мінеральна вата 100 мм). - Буду радий Вас чути): Пн-Пт - 8: 00-20: 00. Сб-Нд - II: 00-20: 00 Святкові дні - вихідний.