ул. Борткевича, 7 — Продається квартира в новобудові
(г. Харьков, Киевский район)
30500 $
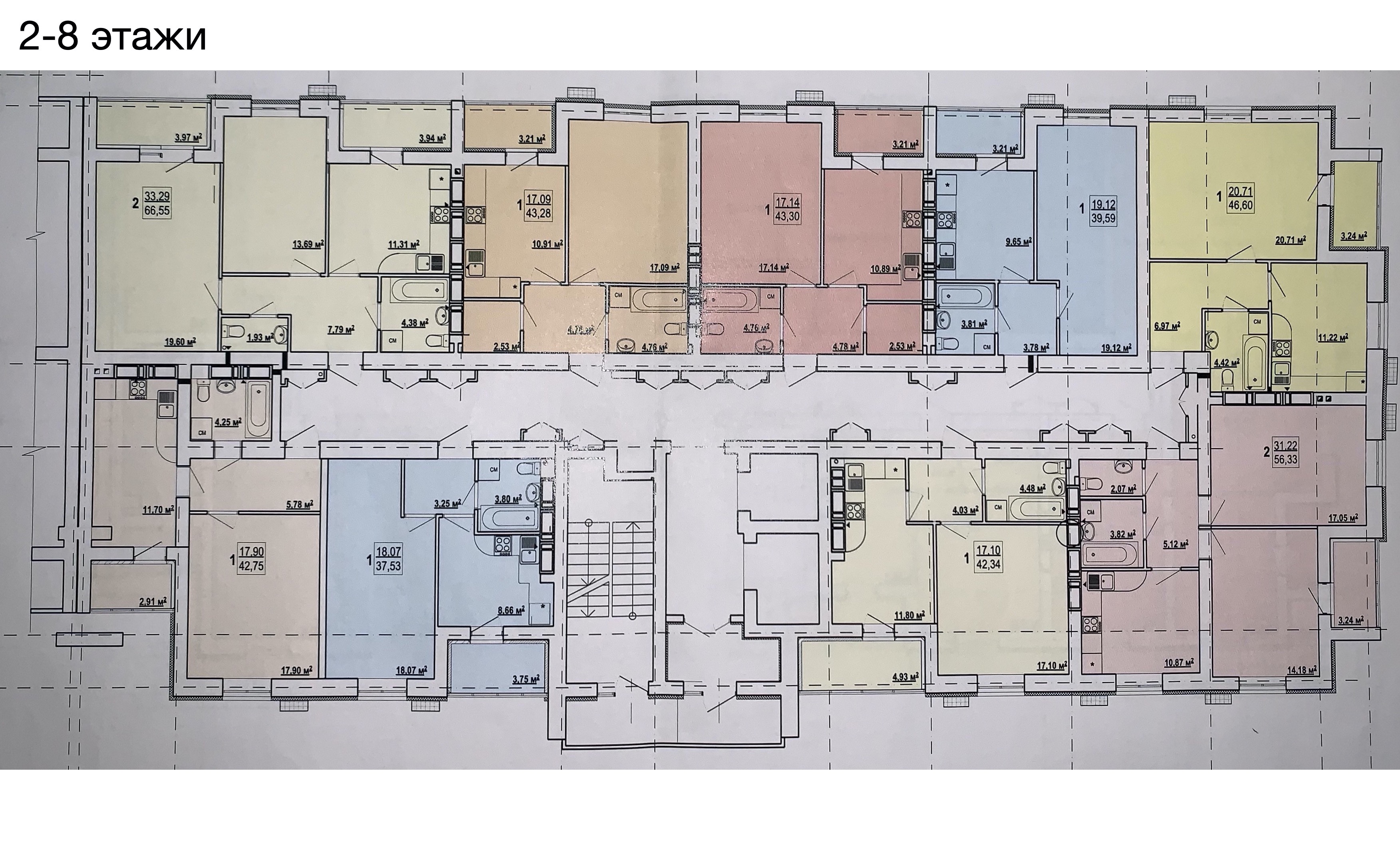
Загальна площа: 43 кв.м
Жила площа: 17 кв.м
Площа кухні: 11 кв.м
Кімнат: 1
Поверх: 7
К-ть поверхів: 16
Продається 1-кімнатна квартира в новобудові ЖК "Гідропарк", по вул. Шевченко, 327. В радіусі 2 км. від комплексу розташовані: зупинка громадського транспорту (трамваї, автобуси); невеликі продуктові магазини; 2 школи; 2 саду; розваги і відпочинок: Журавлівський гідропарк, пляжі і пару кафе. На території комплексу планується благоустрій території: обладнані дитячі майданчики, комфортні зони відпочинку і занять спортом, виділена гостьова паркувальна зона і багаторівневий паркінг. - Квартира розташована в будинку 5. Здача будинку запланована на кінець 2021, до ремонтів можна буде приступати з весни 2022 року. Площа квартири: Загальна площа - 43 м²; Житлова площа - 17 м²; Кухня - 11 м². - ПОТРІБНО КАПІТАЛЬНИЙ РЕМОНТ. КОМПЛЕКТАЦІЯ КВАРТИРИ: • встановлені перегородки як зазначено на плані; • металопластикові вікна (viknaland) • горизонтальна розводка опалення та радіатори опалення (є можливість поставити лічильник на тепло, регулятори на батареї і контролювати подачу тепла в квартиру індивідуально); • вхідні залізні двері; • лічильник на електрику; • підведені комунікації (холодна, гаряча вода); • каналізація; • прийнято електрику; • зроблено зовнішнє утеплення стін (утеплювач мінеральна вата 100 мм). - Буду радий Вас чути): Пн-Пт - 8: 00-20: 00. Сб-Нд - II: 00-20: 00 Святкові дні - вихідний.