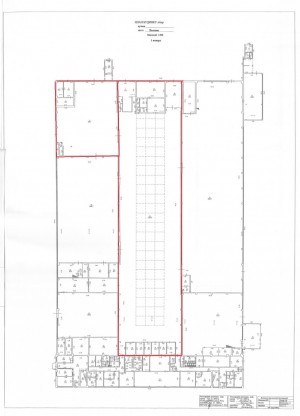
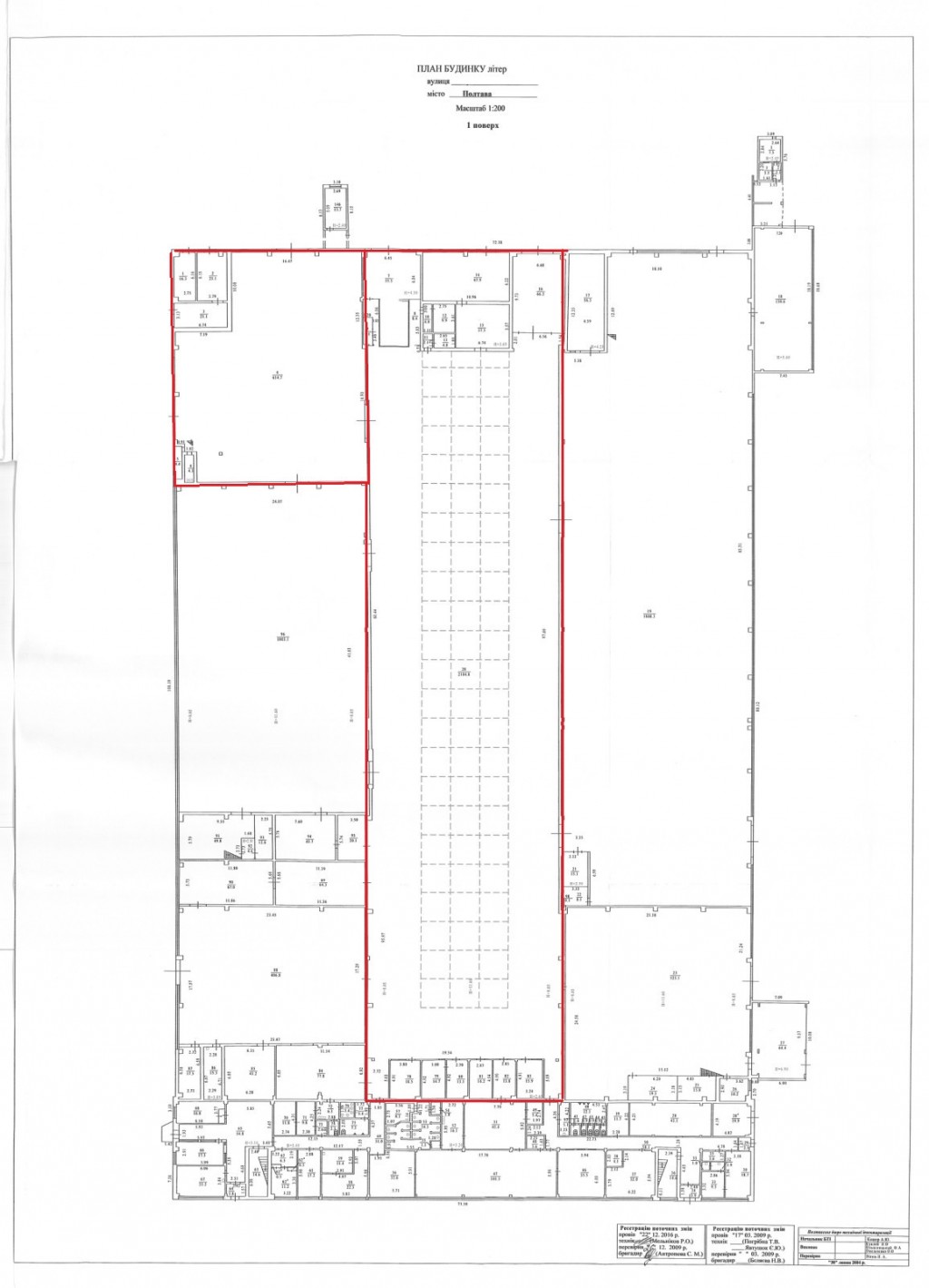
Оренда виробничого цеху площею 2185м2, в районі промислової зони Супрунівки залізничної, р-н вул. Половка Опис: -у цеху є дві кранбалки 3,2 т., висота до кранбалки Н = 9м., висота цеху Н = 11 м.; -високі ворота для в'їзду фур; -на виробничій базі своя підстанція 600 кВт, є майданчик з залізничною гілкою та козловим краном, опалювані офісні та побутові приміщення; -є резервуари для зберігання ПММ та сипких матеріалів; -майданчики для стоянки вантажного транспорту; -охорона, відео спостереження
Вартість: 55 грн/м2 + комунальні послуги+ одноразова комісія АН 50%.