ул. Монастырская, 11 — Продається квартира
(г. Полтава, Октябрьский район)
40000 $
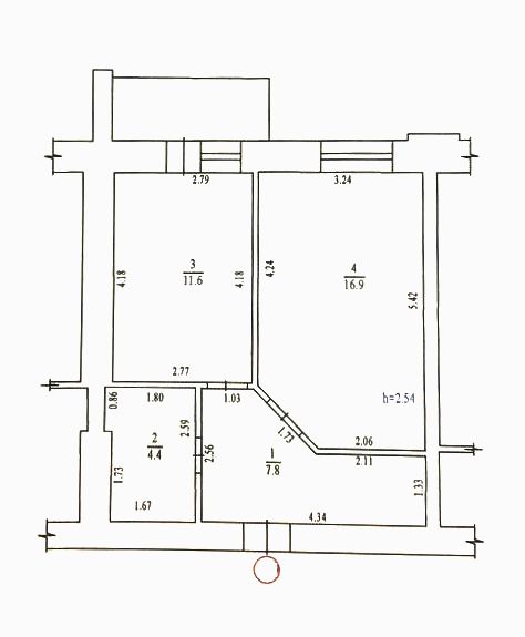
Загальна площа: 41.9 кв.м
Жила площа: 16.9 кв.м
Площа кухні: 11.6 кв.м
Кімнат: 1
Поверх: 4
К-ть поверхів: 8
Продам 1 комнатную квартиру в новом доме в р-не Центра по ул. Монастырской, 11 (дом 2019 г.с.) общей площадью 41,9 м.кв с автономным отоплением . Характеристика квартиры: - Общая площадь – 41,9 м.кв; - Жилая площадь – 16,9 м.кв; - Кухня - 11,6м.кв; - 4/8 эт. кир. дома Коммуникации: - централизованные; - отопление - автономное, - счетчики на свет, газ, воду. Состояние: - после строителей, м/п окна 5 камерный профиль, двойные стеклапакеты, установлены биметаллические радиаторы отопления, двухконтурный котёл- не установлен. Стоимость квартиры: $40000
Оновлено: 24 серпня 2022
Розміщено: 31 травня 2022
Вам также могут подойти
Оновлено: 20 січня
Розміщено: 12 листопада 2024
1 кімн., площа 43.8/22.9/10.7, поверх 10/11
г. Полтава, Боровиковського
35000 $
Остапченко Александр Степанович
соучредитель (Агентство недвижимости "Альянс риэлти" Полтава )
Продаж 1 кімнатної квартири в новобудові на Огнівки по бульвару Боровиковського Характеристика квартири: - загальна площа 43, 8 м2; - житлова площа 22, 9 м2; - кухня 10, 7 м2;…
Детальніше
Оновлено: 20 січня
Розміщено: 21 серпня 2025
3 кімн., площа 66.3/41/10, поверх 4/4
г. Полтава, пер. Пушкіна, 88А
35000 $
Остапченко Александр Степанович
соучредитель (Агентство недвижимости "Альянс риэлти" Полтава )
ПРОДАЖ 3-КІМНАТНОЇ КВАРТИРИ Розташування: Центральна частина міста, район зупинки ОЦЕВУМ район вул. Юліана Матвійчука, 88А Характеристики квартири: -загальна площа 66,3 м2 -житлова площа 41 м2 -кухня 10 м2 -четвертий поверх…
Детальніше
Оновлено: 11 січня
Розміщено: 27 листопада 2025
2 кімн., площа 44/30/5, поверх 4/5
г. Полтава, ул. Великотырновская, 29
39000 $
без комісії
Остапченко Александр Степанович
соучредитель (Агентство недвижимости "Альянс риэлти" Полтава )
ПРОДАЖ 2-КІМНАТНОЇ КВАРТИРИ м-н Половки, р-н зупинки “Бібліотека”, вул. Великотирнівська Характеристика об’єкта: • Загальна площа — 44,6 кв.м • Житлова площа — 30,4 кв.м • Кухня — 5 кв.м •…
Детальніше
Коментарі