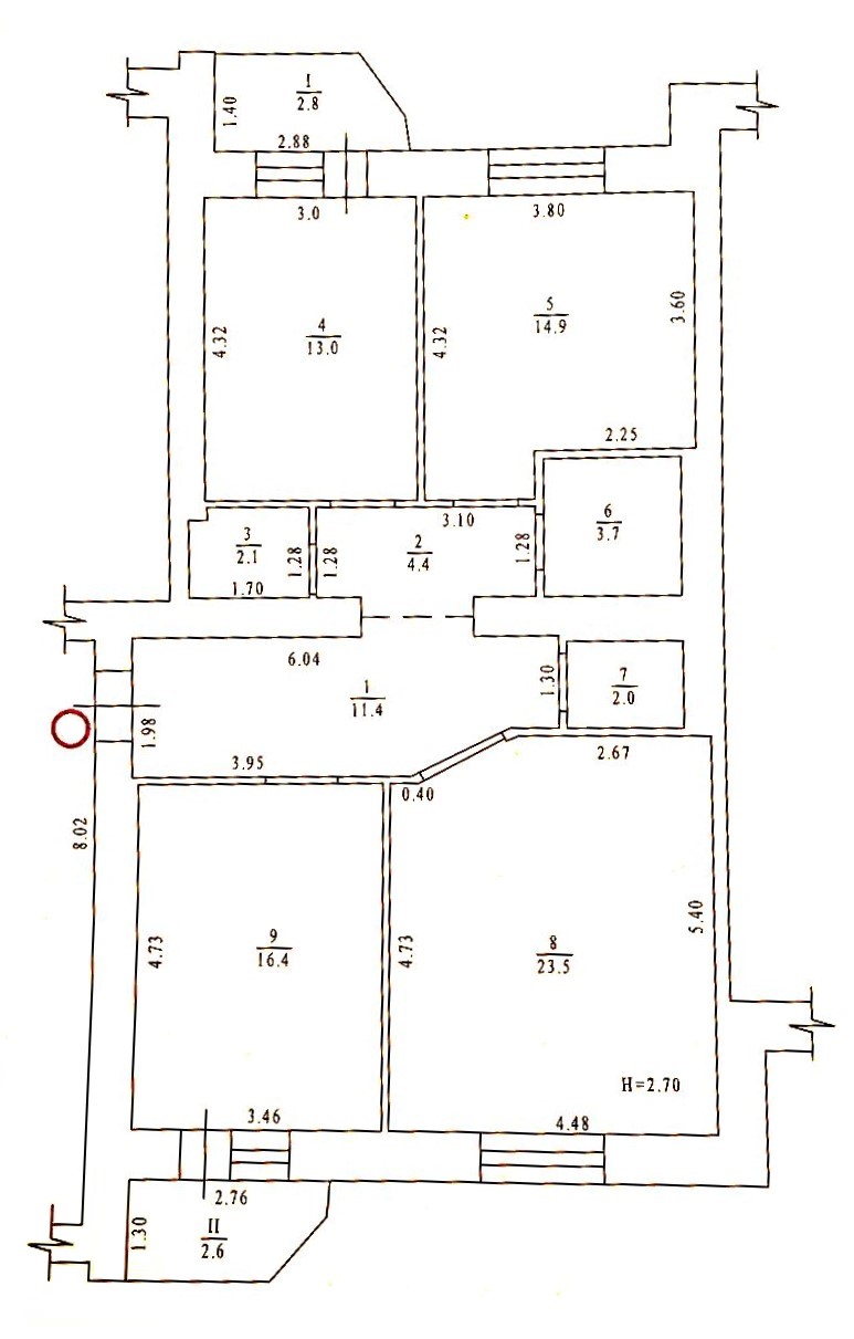
Продаж 3 кімнатної квартири в новому будинку автономним опаленням в р-ні зупинки ОЦЕВУМ (5 школа), в р-ні вул. Симона Петлюри, 3, з євроремонтом, меблями та побутовою технікою Характеристика квартири: - загальна площа 96,8 кв.м; - житлова площа 51,4 кв.м; - кухня 16, 4 кв.м; - 7 поверх в 9 поверховому будинку, не кутова; - висота стелі Н= 2, 7 м Комунікації: - централізовані, автономне опалення (двоконтурний котел); - лічильники на воду, світло, газ. Стан: - вікна м/п - ремонту 5 років - продаж з меблями
Продаж 3 кімнатної квартири (індивідуальний проект) в Центрі Полтави, поряд з школою №38, по вул. Ватутіна, 9/68 Характеристика квартири: - Загальна площа - 70,1 кв.м; - Житлова площа – 42,6…
Продаж апартаментів з двома спальнями в будинку бізнес класу, в Центрі Полтави, р-н вул. Симона Петлюри (стара назва- Артема), 3, поряд з зупинкою «ОЦЕВУМ» Характеристика квартири: - загальна площа –…
Продаж 3 кімнатної квартири (індивідуальний проект) в Центрі Полтави, поряд з школою №38, по вул. Ватутіна, 9/68 Характеристика квартири: - Загальна площа - 70,1 кв.м; - Житлова площа – 42,6…