ул. Революционная — Продається заклад громадського харчування
(г. Кривой Рог, Дзержинский район)
200000 $
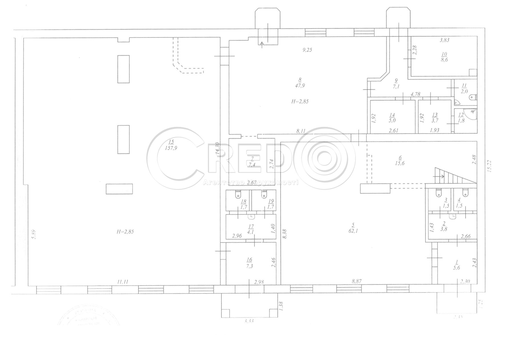
Загальна площа: 386 кв.м
К-ть поверхів: 1
Продаж окремої будівлі район "Соцмісто" - Металургійний район - вул. Степана Тільги
Про об’єкт: - окрема будівля - земельна ділянка - 390кв.м, кадастровий номер
Планування об’єкту: - загальна площа: 386 кв.м - розділено на два окремих приміщення, у кожного власні комунікації - на другому поверсі кабінет та котельня
Комунікації: - центральне електропостачання 20 кВт; 380Вт, власне ТП - центральне водопостачання - центральна каналізація - опалення газове та електричне, спліт система - пожежна та охоронна сигналізації - відеостостередження - інверторні кондиціонери
Логістична розв’язка: - будівля разташована на "Соцмісті", поруч вся інфраструктура - 50м до "червоної лінії" та зупинок громадського транспорту - поруч розташовані Нова Пошта, держустанови, магазини, банк - парк ім.Б.Хмельницького
Особливості приміщення: - два центральних входи - завантажувальний вхід - зручний під'їзд для авто - вітражний фасад Продаж 200000 $
За будь-якими питаннями за цією або схожими пропозиціями звертайтесь за номером телефону 067 696 16 51 З повагою, команда Credo!