Вхід на сайт

Ел. пошта:
Пароль:

Реєстрація на сайті

Призвіще: Область:
Ім'я: Населений пункт:
    По батькові: Номер телефону:
    Ел. пошта: Компанія:
      Пароль: Посада:
      Повторіть пароль: Рік початку роботи:
      Фото:
      З правилами розміщення об'єктів погоджуюсь

      Забули пароль?

      Вкажіть ел. пошту — ми надішлемо Вам новий пароль для входу
      Ел. пошта:

      Проблема на сайті

      Закрити
      Ваш e-mail:
      (необов'язково)
      Розкажіть нам, що сталось

      Соборності — Здається квартира

      (г. Полтава, Киевский район)

      18000 грн.

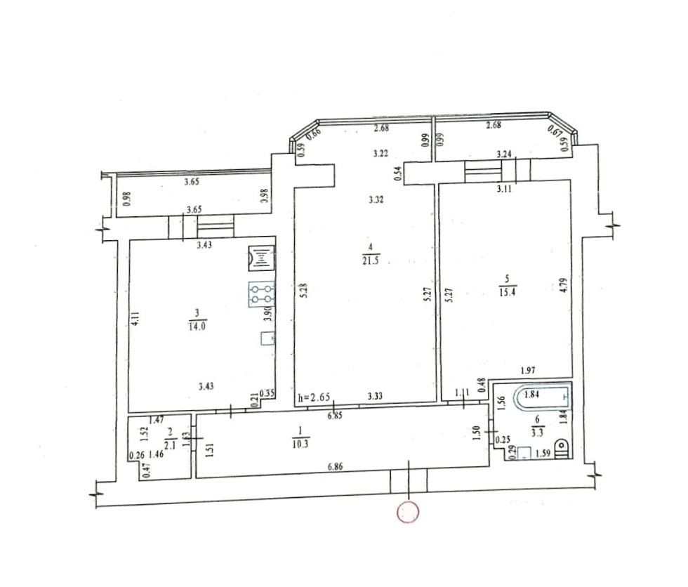
      Загальна площа: 73 кв.м

      Жила площа: 37 кв.м

      Площа кухні: 14 кв.м

      Кімнат: 2

      Поверх: 2

      К-ть поверхів: 9

      Здам в оренду 2 кімнатну квартиру в будинку бізнес класу 2011 р.б., в Центрі Полтави, район вул. Соборності, 59 (ресторану "Раффінато" та готелю "Алея Гранд")
      Характеристика квартири:
      - загальна площа 72, 7 кв.м;
      - житлова площа 36, 9 кв.м;
      - кімната- 21, 5 кв.м;
      - кімната- 15, 4 кв.м;
      - кухня 14, 0 кв.м;
      - два санвузли;
      - поверх 2/9 пов. цегляного будинку;
      - 2 балкони та лоджія засклені
      - висота стель Н= 2, 65 м;
      Комунікації:
      - централізовані;
      - опалення (тепла підлога) та підігрів води двоконтурний котел,
      - лічильники: світло, газ, холодне водопостачання
      Стан:
      - вікна м/п
      - ремонту 7-8 річний ремонт
      -повна комплектація меблями та побутовою технікою

      Вартість оренди:
      - 18 000 грн/місяць (перший+ останній) + комунальні послуги+ одноразова комісія АН 50%.

      Надіслати скаргу

      Закрити
      Поскаржитися на об'єкт «Соборності (г. Полтава, Киевский район)»
      Ваш коментар:(Необов'язково)
      Ваша скарга буде надіслана ріелтору, що розмістив об'єкт, а також адміністрації сайту АФНУ.
      Ваше ім'я:
      (Обов'язково)
      Ваш e-mail для відповіді:
      (Обов'язково)

      Вам также могут подойти

      Боровиковского б-р (г. Полтава, Киевский район) - Здається квартира, 12000 грн. - АФНУ

      Оновлено: 10 січня

      Розміщено: 12 січня 2023

      Здається квартира

      2 кімн., площа 67.1/48/14, поверх 3/10

      г. Полтава, Боровиковского б-р

      12000 грн.

      Остапченко Александр Степанович

      соучредитель (Агентство недвижимости "Альянс риэлти" Полтава)

      Аренда 2 комнатной квартиры в новом доме 2015 г.с. с автономным отоплением, с ремонтом, мебелью и техникой на Огнивке (м-н Сады- 3) по б-ру Боровиковского

      Характеристика квартиры:
      Общая площадь –…

      Детальніше

      ул. Садовая (г. Полтава, Октябрьский район) - Здається квартира, 15000 грн. - АФНУ

      Оновлено: 6 січня

      Розміщено: 7 серпня 2020

      Здається квартира

      2 кімн., площа 60/20/25, поверх 7/9

      г. Полтава, ул. Садовая

      15000 грн.

      Остапченко Александр Степанович

      соучредитель (Агентство недвижимости "Альянс риэлти" Полтава)

      Здам в оренду 2-кімнатну квартиру (1 bedroom apartment) у Полтаві.
      Центральна частина міста, поруч із Національним юридичним університетом ім. Ярослава Мудрого та Полтавським національним технічним університетом ім. Юрія Кондратюка. Будинок…

      Детальніше

      Соборності (Жовтнева) вулиця (г. Полтава, Октябрьский район) - Здається квартира, 15000 грн. - АФНУ

      Оновлено: 20 січня

      Розміщено: 7 грудня 2022

      Здається квартира

      2 кімн., площа 52/30/9, поверх 3/4

      г. Полтава, Соборності (Жовтнева) вулиця

      15000 грн.

      Остапченко Александр Степанович

      соучредитель (Агентство недвижимости "Альянс риэлти" Полтава)

      з 10 лютого 2026 року здам в оренду 2 кімнатну квартиру в Центрі по вул. Соборності, зуп. Стадіон

      Характеристика квартири:
      - загальна площа -52 кв.м;
      - житлова площа – 30…

      Детальніше

      Коментарі