пр. Гагаріна — Продається квартира
(г. Кривой Рог, Саксаганский район)
23000 $
Загальна площа: 73 кв.м
Жила площа: 48 кв.м
Площа кухні: 8 кв.м
Кімнат: 3
Поверх: 4
К-ть поверхів: 4
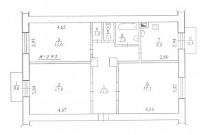
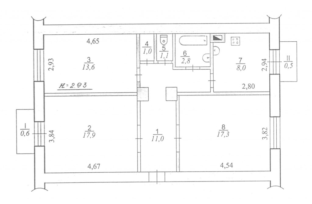
Продаж 3-кімнатної квартири, 97 Квартал, пр. Університетський (раніше пр. Гагаріна) Пропонуємо до Вашої уваги велику квартиру "сталінку" 4/4 поверхового будинку, розташованого в тихому дворі, з виходом на проспект. Про об'єкт: - загальна площа 73,8кв.м - житлова площа 48,8кв.м. Планування об'єкту: - кухня 8кв.м. з виходом на балкон; - велика зала 17,9кв.м. з виходом на балкон; - простора спальня 17,3кв.м. - спальня 13,6кв.м. - сан.вузол роздільний - кладова. Комунікації: - опалення центральне - водопостачання - газопостачання (колонка автомат) Особливості квартири: - тепла, затишна; - простора, світла; - легко переплановується; - гарні сусіди; - зверху техн.поверх. Локація: - центр міста - розвинена інфраструктура - зупинки міського транспорту - магазини супермаркети та розважальні заклади Ціна 23 000$ За будь-якими питаннями за цією або схожими пропозиціями звертайтесь за номером телефону, де вам відповість наш ріелтор 097 203 67 77. З повагою, команда Credo!
Оновлено: 6 березня
Розміщено: 14 березня 2024
Вам также могут подойти
Оновлено: 10 березня
Розміщено: 16 липня 2025
3 кімн., площа 110/52/21, поверх 9/9
г. Кривой Рог, ул. Пришвина
20000 грн.
Літвинова Ірина Вікторівна
Оренда сучасної квартири в ЖК "Прем’єр" - вул. Пришвіна - Саксаганський район Технічні характиристики: - загальна площа -110 кв.м. - 9 поверх 9 поверхового будинку - крите паркомісце у дворі…
Детальніше
Оновлено: 2 лютого
Розміщено: 7 серпня 2025
2 кімн., площа 44/32/7, поверх 2/2
г. Кривой Рог, ул. Парковая
18500 $
Літвинова Ірина Вікторівна
Продаж 2-х кімнатної квартири вул. Паркова «Площа В.Великого» Про об’єкт: - Поверх 2/2 - Загальна площа 44.6кв.м - Житлова 32.0 кв.м. - Кухня 7.1 кв.м. - Замінені труби на м/пл.…
Детальніше
Оновлено: 12 лютого
Розміщено: 20 листопада 2025
3 кімн., площа 65/39/9, поверх 9/9
г. Кривой Рог, ул. Корнейчука
24000 $
Літвинова Ірина Вікторівна
Продаж 3-х кімнатної квартири, Саксаганський район, вул. І. Авраменка. Про об’єкт: Квартира розташована на 9/9 поверхового будинку. - Не кутова, не прохідна, двостороння. - Загальна площа 65,8кв.м., - житлова площа…
Детальніше
Коментарі