Вхід на сайт

Ел. пошта:
Пароль:

Реєстрація на сайті

Призвіще: Область:
Ім'я: Населений пункт:
    По батькові: Номер телефону:
    Ел. пошта: Компанія:
      Пароль: Посада:
      Повторіть пароль: Рік початку роботи:
      Фото:
      З правилами розміщення об'єктів погоджуюсь

      Забули пароль?

      Вкажіть ел. пошту — ми надішлемо Вам новий пароль для входу
      Ел. пошта:

      Проблема на сайті

      Закрити
      Ваш e-mail:
      (необов'язково)
      Розкажіть нам, що сталось

      без комісії Соборності, 7 — Здається офіс

      (г. Кривой Рог, Дзержинский район)

      13000 грн.

      Загальна площа: 91 кв.м

      Кімнат: 2

      Поверх: 1

      К-ть поверхів: 5

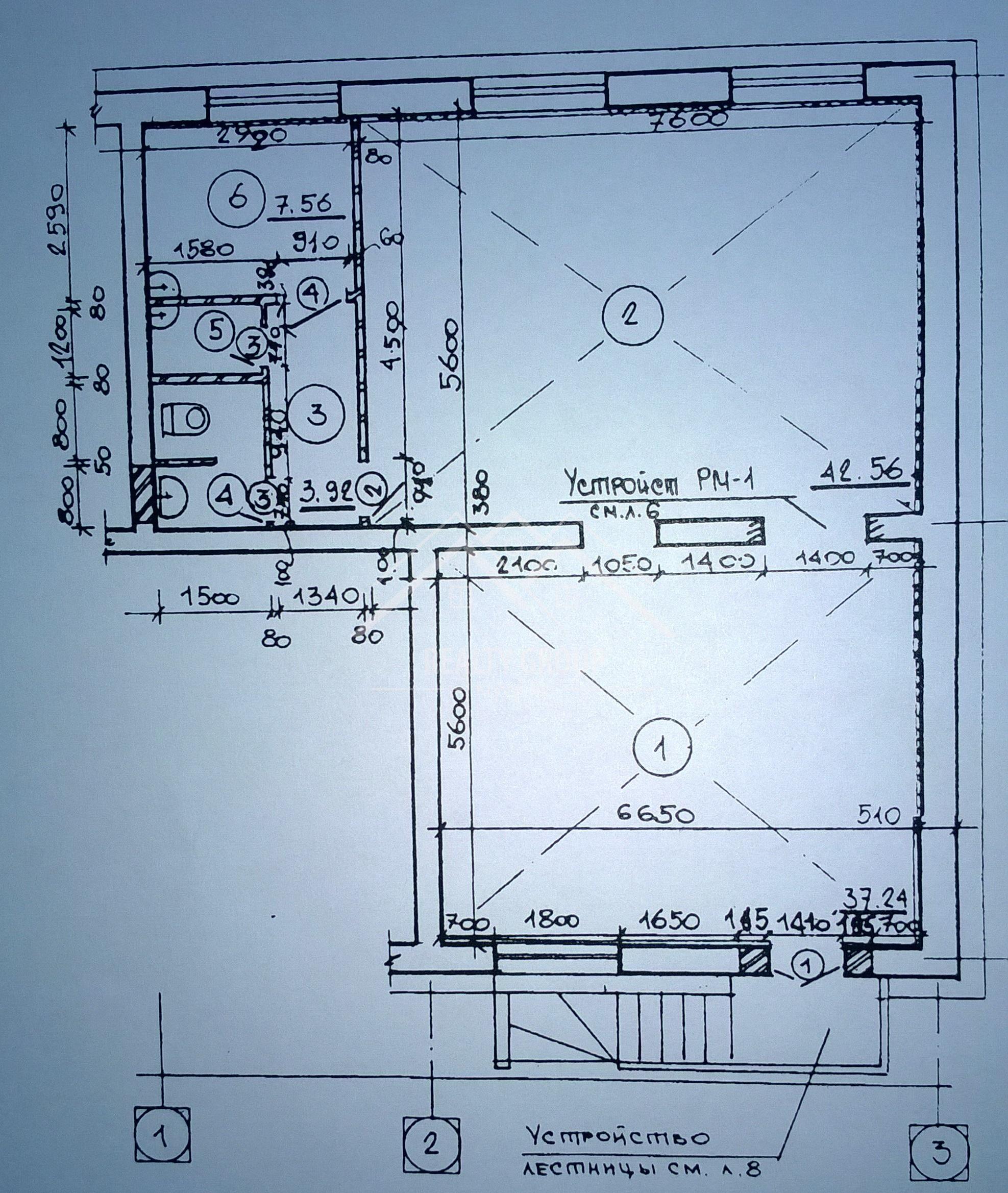
      Оренда приміщення по вул.Соборності (Стріла).

      Приміщення з ремонтом. Встановлені металопластикові вікна ( є решітки ).

      Опалення централізоване, підлога кахель, стіни пофарбовані, стеля амстронг.

      Два торгівельних зали, кухня, комора, санвузол.

      Загальна площа 91м2, корисна – 80м2

      За будь-якими питаннями звертайтесь по телефону.

      Надіслати скаргу

      Закрити
      Поскаржитися на об'єкт «Соборності, 7 (г. Кривой Рог, Дзержинский район)»
      Ваш коментар:(Необов'язково)
      Ваша скарга буде надіслана ріелтору, що розмістив об'єкт, а також адміністрації сайту АФНУ.
      Ваше ім'я:
      (Обов'язково)
      Ваш e-mail для відповіді:
      (Обов'язково)

      Коментарі