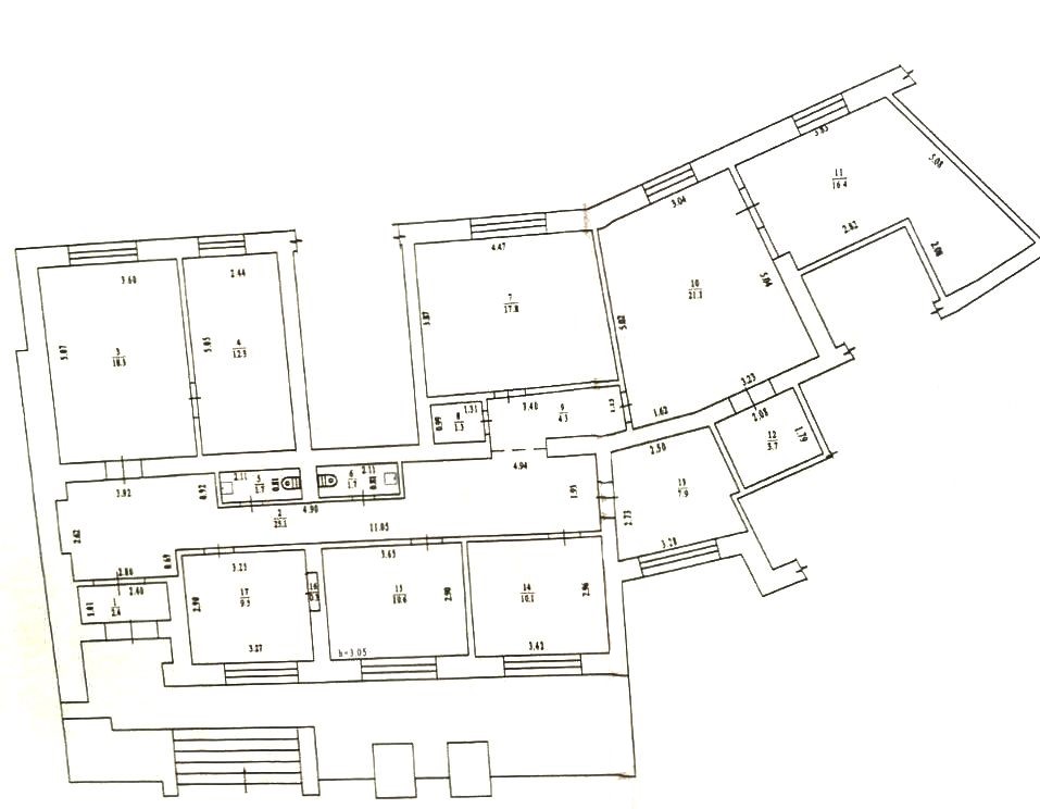
Продаж офісного приміщення на Подолі по вул. Н. Сотні (зуп. Оптика, р-н маг. АТБ) з окремим входом з фасаду будинку, загальною площею 164 м2 на 9 кабінетів Характеристики: -1 поверх, вхід з фасаду будинку, парковка для авто - ресепшен - 9 кабінетів (2 кабінети з приймальнями, 5 кабінетів- окремі ) - 2 санвузли - комора - коридор - висота приміщення Н= 3,05м
Комунікації: - централізоване опалення та водовідведення - потужність електромережі 3кВт 380V - кондиціонування приміщень- кондиціонери в кабінетах