Вхід на сайт

Ел. пошта:
Пароль:

Реєстрація на сайті

Призвіще: Область:
Ім'я: Населений пункт:
    По батькові: Номер телефону:
    Ел. пошта: Компанія:
      Пароль: Посада:
      Повторіть пароль: Рік початку роботи:
      Фото:
      З правилами розміщення об'єктів погоджуюсь

      Забули пароль?

      Вкажіть ел. пошту — ми надішлемо Вам новий пароль для входу
      Ел. пошта:

      Проблема на сайті

      Закрити
      Ваш e-mail:
      (необов'язково)
      Розкажіть нам, що сталось

      без комісії Коніського, 46/11 — Продається квартира

      (г. Киев, Шевченковский район)

      450000 $

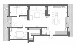
      Загальна площа: 145 кв.м

      Жила площа: 90 кв.м

      Площа кухні: 40 кв.м

      Кімнат: 2

      Поверх: 8

      К-ть поверхів: 8

      FOR SALE !!! СПП 2% !!! Продаж Унікального пентхауса 145 м2 на мансардному 8 му поверсі 8 поверхового будинка, в історичному центрі Києва на вул. О.Кониського 46/11 (Тургенівській) , а також 2 видові тераси по 32 м2 кожна. Дизайнпроект є Номінантом міжнародних дизайнерських конкурсів. Полусферичним дах з вікнами у стелі створює неповторну атмосферу. Висота стелі від 3,5 до 4,5 метрів. Ідеально підійде як для пари, так і для однієї людини. Пентхаус повністю укомплектовано всією необхідною технікою і меблями, в гостьовій кімнаті є діючий камін на біопаливі. Будинок - Бетонно монолітний, планування кімнат роздільне, гаряча вода - електричний бойлер, опалення централізоване, сигналізація, інтернет оптоволоконний, система доступу в квартиру і під'їзд, 2х рівневий підземний паркінг і парковка в дворі, заїзд і виїзд через 2 шлагбауми. Будинок розашований на одній лінії з посольством Ватикану, тому світло в офісі НЕ відключають. Чудове місце для комфортного проживання ! Телефонуйте і записуйтесь на перегляд !

      Надіслати скаргу

      Закрити
      Поскаржитися на об'єкт «Коніського, 46/11 (г. Киев, Шевченковский район)»
      Ваш коментар:(Необов'язково)
      Ваша скарга буде надіслана ріелтору, що розмістив об'єкт, а також адміністрації сайту АФНУ.
      Ваше ім'я:
      (Обов'язково)
      Ваш e-mail для відповіді:
      (Обов'язково)

      Вам также могут подойти

      ул. Тургеневская, 46/11 (г. Киев, Шевченковский район) - Продається квартира, 485000 $ - АФНУ

      Оновлено: 21 лютого

      Розміщено: 14 жовтня 2020

      Продається квартира

      5 кімн., площа 340/280/40, поверх 17/17

      г. Киев, ул. Тургеневская, 46/11

      485000 $ без комісії

      Корольов Сергій Геннадійович

      FOR SALE !!! Продажа Уникального Видового Пентхауса 340 м2, 17 этаж/17 этажного дома , в престижном дипломатическом районе Киева на ул. Тургеневской 46/11, Шевченковский р-н , дом дипкорпуса, заказчик ГДИП.…

      Детальніше

      ул. Тургеневская, 46/11 (г. Киев, Шевченковский район) - Продається квартира, 485000 $ - АФНУ

      Оновлено: 21 лютого

      Розміщено: 14 жовтня 2020

      Продається квартира

      5 кімн., площа 340/280/40, поверх 17/17

      г. Киев, ул. Тургеневская, 46/11

      485000 $ без комісії

      Корольов Сергій Геннадійович

      FOR SALE !!! Продажа Уникального Видового Пентхауса 340 м2, 17 этаж/17 этажного дома , в престижном дипломатическом районе Киева на ул. Тургеневской 46/11, Шевченковский р-н , дом дипкорпуса, заказчик ГДИП.…

      Детальніше

      Коментарі