Вхід на сайт

Ел. пошта:
Пароль:

Реєстрація на сайті

Призвіще: Область:
Ім'я: Населений пункт:
    По батькові: Номер телефону:
    Ел. пошта: Компанія:
      Пароль: Посада:
      Повторіть пароль: Рік початку роботи:
      Фото:
      З правилами розміщення об'єктів погоджуюсь

      Забули пароль?

      Вкажіть ел. пошту — ми надішлемо Вам новий пароль для входу
      Ел. пошта:

      Проблема на сайті

      Закрити
      Ваш e-mail:
      (необов'язково)
      Розкажіть нам, що сталось

      без комісії ул. Межигорская, 13 — Продається офіс

      (г. Киев, Подольский район)

      135000 $

      Загальна площа: 108 кв.м

      Кімнат: 5

      Поверх: 3

      К-ть поверхів: 3

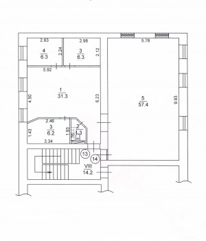
      Продається приміщення в історичному центрі Подолу
      - Адреса: Межигірська, 13
      - Площа: 108 м²
      - Поверх: 3/3, цегляний будинок

      Ідеальне рішення для офісу, студії, творчої майстерні або прибуткового орендного бізнесу!

      Планування:
      • Два зали
      • Два кабінети
      • Санвузол
      • Кімната-гардеробна
      Приміщення світле та просторе, з вікнами на вулицю та у затишний двір.

      Локація:
      Знаходиться у самому серці старого Подолу, в оточенні історичних пам’яток та сучасної інфраструктури. Поруч метро та зручна транспортна розв’язка.
      У кроковій доступності безліч кав’ярень, ресторанів, банків та інших зручностей.

      Особливості:
      Можливий продаж з орендарями — готовий бізнес під ключ.

      Ціна та деталі:
      Зв’яжіться з нами для отримання додаткової інформації та організації перегляду.

      Не втрачайте можливість придбати приміщення у престижному районі Києва!

      Надіслати скаргу

      Закрити
      Поскаржитися на об'єкт «ул. Межигорская, 13 (г. Киев, Подольский район)»
      Ваш коментар:(Необов'язково)
      Ваша скарга буде надіслана ріелтору, що розмістив об'єкт, а також адміністрації сайту АФНУ.
      Ваше ім'я:
      (Обов'язково)
      Ваш e-mail для відповіді:
      (Обов'язково)

      Вам также могут подойти

      Ризька, 73-г (г. Киев, Шевченковский район) - Продається офіс, 120000 $ - АФНУ

      Оновлено: 5 березня

      Розміщено: 16 січня 2025

      Продається офіс

      3 кімн., площа 85, поверх 1/25

      г. Киев, Ризька, 73-г

      120000 $ без комісії

      Рощіна Світлана Миколаївна

      Членкиня Правління КМВ АФНУ (Ассоциация специалистов по недвижимости (риэлторов) Украины) , Членкиня IT-комітету КМВ АФНУ (Ассоциация специалистов по недвижимости (риэлторов) Украины) , Модераторка регіонального відділення КМВ АФНУ (Ассоциация специалистов по недвижимости (риэлторов) Украины) , Голова комітету з навчання та підвищення кваліфікації (Ассоциация специалистов по недвижимости (риэлторов) Украины)

      Продається офісне приміщення за адресою: вул. Ризька, 73Г, Шевченківський район, Київ

      Пропонуємо до вашої уваги нежитлове приміщення у житловому будинку, розташоване на першому поверсі з окремим входом. Ідеальне рішення для…

      Детальніше

      Коментарі